Vol.002
事務所のコンバージョンの話 その2
ざっくりと間取りを考える。
最初は、できるだけコストを抑え、手間を省くために既存のものをできるだけ残して有効活用しようと考えました。
2戸を分割していた壁(押し入れ、床の間部分)をとっぱらう意外の部分は、できるだけ作業が少なく済むように考えており、トイレ・風呂・玄関部分はそのまま残す予定でした。収納スペースにでもあてれるだろうということで。おおまかなプランは、机や機材を配置することから決め込んで、だいたい出来上がったところで、実際に現場に入って解体作業の中でプランの詰めをやって行きました。
<つづく>
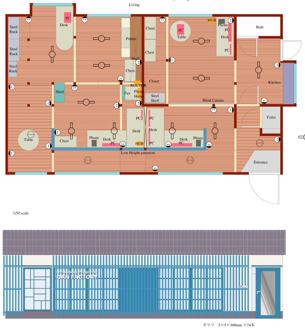
事務所のコンバージョンの話 その2
ざっくりと間取りを考える。
最初は、できるだけコストを抑え、手間を省くために既存のものをできるだけ残して有効活用しようと考えました。
2戸を分割していた壁(押し入れ、床の間部分)をとっぱらう意外の部分は、できるだけ作業が少なく済むように考えており、トイレ・風呂・玄関部分はそのまま残す予定でした。収納スペースにでもあてれるだろうということで。おおまかなプランは、机や機材を配置することから決め込んで、だいたい出来上がったところで、実際に現場に入って解体作業の中でプランの詰めをやって行きました。
2番目の図面は、ほぼ完成に近いプラン図ですが、実際にはこのプランより柱の数は減っています。
また、外観正面のデザインも当初の横組ガラリをやめて縦にしています。当初のアイデアの色だと完全に和風の料亭っぽい外観になってしまうのでブルーを基調にしたカラーに修正。
ここでは、まだ、ステンレスの看板(廃物利用)を玄関ドアにする予定でいました。
解体作業は大変です。楽しい面もありますが、使えるものは再利用するという方針でしたので、とにかく手間がかかる。新築のように新しい材料ばかりを使うのであればどんなに楽なことかと思いました。ただ、日に日に景色が変わって行くというのは期待感が高まりますね。目の前にうずたかくなった廃材を見ると、果たしてできるのだろうか?ゴールは見えるのか?という不安もつきまといますが…。また、外観正面のデザインも当初の横組ガラリをやめて縦にしています。当初のアイデアの色だと完全に和風の料亭っぽい外観になってしまうのでブルーを基調にしたカラーに修正。
ここでは、まだ、ステンレスの看板(廃物利用)を玄関ドアにする予定でいました。
<つづく>